- Agence immobilière à Saint-Etienne
- Vente
- Loire
- St etienne
- A saisir F5 duplex St Etienne Centre-Ville
Référence : 2369
Calculette
Partager
A saisir F5 duplex St Etienne Centre-Ville
Partager l'offre
Description de l'offre
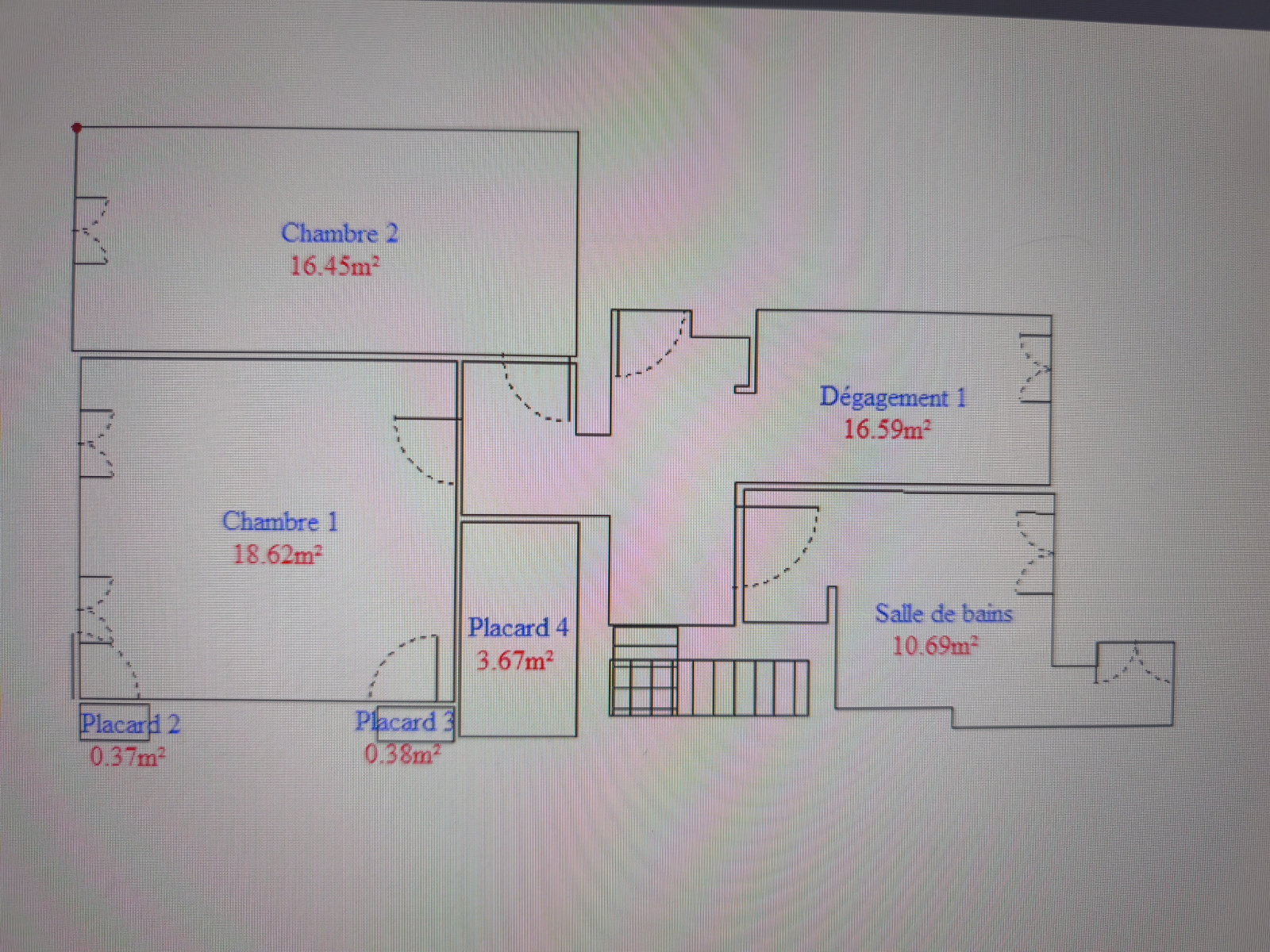
Prox. Tribunal, grand appartement duplex traversant et lumineux de 153 m², situé au 2ème et 3ème étage sans ascenseur dans une copropriété entretenue, offrant un très grand séjour de 69 m² avec un balcon, une cuisine avec cellier, un WC. A l'étage 3 grandes chambres parquets, nombreux rangement, grand dressing, salle de bain avec douche, baignoire et WC. Appartement offrant de très beaux volumes, travaux à prévoir, possibilité de faire 2 appartements. Chauffage individuel gaz, double vitrage.
Les informations sur les risques auxquels ce bien est exposé sont disponibles sur le site Géorisques
Descriptif du bien
- Code postal : 42000
- Surface habitable (m²) : 153,25 m²
- Nombre de chambre(s) : 3
- Nombre de pièces : 5
- Etage : 2
- Nombre de niveaux : 2
- Ascenseur : NON
- Nb de salle de bains : 2
- Cuisine : SEPAREE
- Mode de chauffage : Gaz
- Type de chauffage : Autre
- Format de chauffage : Individuel
- Interphone : OUI
- Balcon : OUI
- Terrasse : NON
- Cave : OUI
- Année de construction : 1900
- Quartier : CENTRE VILLE
- Copropriété : OUI
- nombre de lots : 42
- Quote Part annuelle des charges : 1 348 €
- plan de sauvegarde : NON
- statut du syndic : pas de procédure en cours
- Prix de vente : 135 000 €
- Les honoraires d'agence seront intégralement à la charge du vendeur
- Charges : 112 €
- Taxe foncière annuelle : 1 474 €
Montant estimé des dépenses annuelles d'énergie pour un usage standard est compris entre 2 120 € et 2 940 € . Prix moyens des énergies indexés sur les années 2021, 2022 et 2023 (abonnements compris).
La ville de Saint-Étienne (42000)
Nous Contacter
Afficher le téléphone 04 77 32 08 40Les informations recueillies sur ce formulaire sont enregistrées dans un fichier informatisé par La Boite Immo agissant comme Sous-traitant du traitement pour la gestion de la clientèle/prospects de l'Agence / du Réseau qui reste Responsable du Traitement de vos Données personnelles.
La base légale du traitement repose sur l'intérêt légitime de l'Agence / du Réseau.
Elles sont conservées jusqu'à demande de suppression et sont destinées à l'Agence / au Réseau.
Conformément à la loi « informatique et libertés », vous disposez des droits d’accès, de rectification, d’effacement, d’opposition, de limitation et de portabilité de vos données. Vous pouvez retirer votre consentement à tout moment en contactant directement l’Agence / Le Réseau.
Consultez le site https://cnil.fr/fr pour plus d’informations sur vos droits.
Si vous estimez, après avoir contacté l'Agence / le Réseau, que vos droits « Informatique et Libertés » ne sont pas respectés, vous pouvez adresser une réclamation à la CNIL.
Nous vous informons de l’existence de la liste d'opposition au démarchage téléphonique « Bloctel », sur laquelle vous pouvez vous inscrire ici : https://www.bloctel.gouv.fr
Dans le cadre de la protection des Données personnelles, nous vous invitons à ne pas inscrire de Données sensibles dans le champ de saisie libre.
Ce site est protégé par reCAPTCHA, les Politiques de Confidentialité et les Conditions d'Utilisation de Google s'appliquent.
